Back on the market through no fault of the property! BUYER FINANCING FELL THROUGH. Set privately with stunning views of the serene, 479-acre crystal clear Pleasant Lake, this beautifully updated waterfront home offers the perfect blend of tranquility and convenience. The home has been thoughtfully renovated, with new vinyl siding and metal roof, ensuring long-lasting durability and curb appeal. Step out onto the deck, complete with a newly installed awning that provides shade overlooking the lake. A brand-new U-shaped dock awaits your boat or water toys, offering direct access to the beautiful waters. The charming heated bunkhouse offers a cozy retreat for guests. The newly constructed 3-car detached garage comes with an incredible heated bonus space above - perfect for a game room, office, or bar, for year-round entertainment. A brand-new septic system, guarantees worry-free living for years to come. The recently paved driveway has plenty of space for family and friends. There is nothing more enjoyable than lake living. Walk through the door at the end of a long day and stress evaporates. The multi-level decks beckon you to relax and watch nature at its best. Listen to the call of the loons and watch for our newest baby Nova. Did I mention the Sun and Moon rises: Simply stunning on this side of the lake. From October to March the enormous moon baths the home in light. With easy access to all to all local amenities and outdoor activities, this lakeside retreat is truly a year-round paradise. Don't miss the opportunity to call this spectacular property home!

Listing Tools

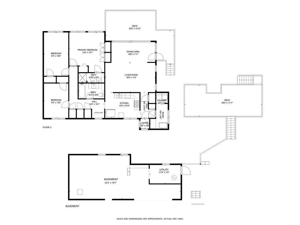
Property Details of 245 North Road

Property Details

Interior Features

Exterior Features

Utilities and Appliances

Community

Other Details

Map Location

Driving Directions

Broker Reciprocity 

Copyright 2026 PrimeMLS, Inc. All rights reserved. This information is deemed reliable, but not guaranteed. The data relating to real estate displayed on this display comes in part from the IDX Program of PrimeMLS. The information being provided is for consumers’ personal, non-commercial use and may not be used for any purpose other than to identify prospective properties consumers may be interested in purchasing. Data last updated February 16, 2026 10:07 PM EST

 

Hi there! How can we help you?

Contact us using the form below or give us a call.

Send Us A Message:

I agree to receive marketing and customer service calls and text messages from Maxfield Real Estate. To opt out, you can reply 'stop' at any time or click the unsubscribe link in the emails. Consent is not a condition of purchase. Msg/data rates may apply. Msg frequency varies. Privacy Policy.

Do not fill in this field:

This site is protected by reCAPTCHA and the Google Privacy Policy and Terms of Service apply.

Hi there! How can we help you?

Contact us using the form below or give us a call.

Send Us A Message:

Do not fill in this field:

This site is protected by reCAPTCHA and the Google Privacy Policy and Terms of Service apply.

Hi there! How can we help you?

Contact us using the form below or give us a call.

Send Us A Message:

Do not fill in this field:

This site is protected by reCAPTCHA and the Google Privacy Policy and Terms of Service apply.

Do not fill in this field:

This site is protected by reCAPTCHA and the Google Privacy Policy and Terms of Service apply.

Do not fill in this field:

This site is protected by reCAPTCHA and the Google Privacy Policy and Terms of Service apply.

Do not fill in this field:

This site is protected by reCAPTCHA and the Google Privacy Policy and Terms of Service apply.

$

Do not fill in this field:

This site is protected by reCAPTCHA and the Google Privacy Policy and Terms of Service apply.