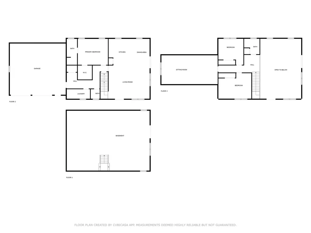
NEW PRICE -Welcome to this beautifully crafted home, custom built in 2023 by Jmac Homes. Ideally set back from the road, it offers added privacy with easy access to North Conway's trail systems, shopping, restaurants, village center, and year-round recreation in the Mount Washington Valley. The open-concept main level features radiant floor heating, a bright living room, and a kitchen with granite countertops, center island, pantry, and a full suite of appliances. A pellet stove in the dining area adds cozy charm, with access to a large covered Trex deck for outdoor entertaining. The spacious main-level primary suite includes a tiled walk-in steam shower and walk-in closet. A laundry room and guest bath complete the main floor, along with direct entry from an oversized heated two-car garage through a handy mudroom. Upstairs offers two more bedrooms, a full bath, and an impressive vaulted family room-ideal for a playroom, office, or studio. The walkout lower level has radiant heat and is pre-plumbed for a full bath, ready to finish to your needs. This is no cookie-cutter home-just quality craftsmanship and thoughtful design in a truly special North Conway setting. Total sqft includes finished garage. Shown by appointment with notice. Agent interest.

Listing Tools

Property Details of 2318 West Side Road

Property Details

Interior Features

Exterior Features

Utilities and Appliances

Community

Other Details

Map Location

Driving Directions

Broker Reciprocity 

Copyright 2026 PrimeMLS, Inc. All rights reserved. This information is deemed reliable, but not guaranteed. The data relating to real estate displayed on this display comes in part from the IDX Program of PrimeMLS. The information being provided is for consumers’ personal, non-commercial use and may not be used for any purpose other than to identify prospective properties consumers may be interested in purchasing. Data last updated February 16, 2026 9:07 PM EST

 

Hi there! How can we help you?

Contact us using the form below or give us a call.

Send Us A Message:

I agree to receive marketing and customer service calls and text messages from Maxfield Real Estate. To opt out, you can reply 'stop' at any time or click the unsubscribe link in the emails. Consent is not a condition of purchase. Msg/data rates may apply. Msg frequency varies. Privacy Policy.

Do not fill in this field:

This site is protected by reCAPTCHA and the Google Privacy Policy and Terms of Service apply.

Hi there! How can we help you?

Contact us using the form below or give us a call.

Send Us A Message:

Do not fill in this field:

This site is protected by reCAPTCHA and the Google Privacy Policy and Terms of Service apply.

Hi there! How can we help you?

Contact us using the form below or give us a call.

Send Us A Message:

Do not fill in this field:

This site is protected by reCAPTCHA and the Google Privacy Policy and Terms of Service apply.

Do not fill in this field:

This site is protected by reCAPTCHA and the Google Privacy Policy and Terms of Service apply.

Do not fill in this field:

This site is protected by reCAPTCHA and the Google Privacy Policy and Terms of Service apply.

Do not fill in this field:

This site is protected by reCAPTCHA and the Google Privacy Policy and Terms of Service apply.

$

Do not fill in this field:

This site is protected by reCAPTCHA and the Google Privacy Policy and Terms of Service apply.