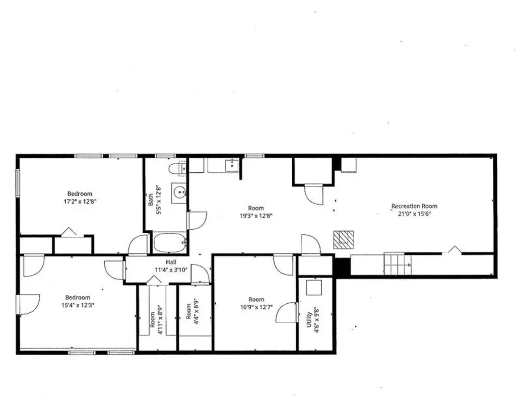
Lakes Region Custom Ranch on over 8 acres in Belmont, New Hampshire. Three bedrooms & three bathrooms, this property offers a rare combination of privacy & convenience, along with extensive solar efficiency (solar panels are paid in full), finished lower level, fenced pool with gazebo, raised garden beds, and a dedicated fire pit area to name some. Multiple outbuildings and garages. Secluded living with everyday conveniences nearby. Remodeled & updated dream kitchen offering a live edge vibe with vaulted ceiling, ten & half foot granite island and stainless steel appliances. The open-concept kitchen area flows into a spacious living room that opens to a three-season porch, leading to multiple decks, and a beautiful in-ground pool area. The primary suite includes a spa-like bath, sitting area with a gas stove, and a private four-season porch. The finished lower level offers two bedrooms, living area, full bath, as well as additional space for an office and/or exercise area. Updated, well maintained, and offering flexible living and storage options, this property presents a unique opportunity in the Lakes Region. Measurements are approximate, please refer to attached floor plans. Public Open House scheduled for next Saturday, March 14, 2026 from noon to 2:00pm.

Listing Tools

Property Details of 680 Union Road

Property Details

Interior Features

Exterior Features

Utilities and Appliances

Community

Other Details

Map Location

Driving Directions

Broker Reciprocity 

Copyright 2026 PrimeMLS, Inc. All rights reserved. This information is deemed reliable, but not guaranteed. The data relating to real estate displayed on this display comes in part from the IDX Program of PrimeMLS. The information being provided is for consumers’ personal, non-commercial use and may not be used for any purpose other than to identify prospective properties consumers may be interested in purchasing. Data last updated March 8, 2026 7:37 PM EDT

 

Hi there! How can we help you?

Contact us using the form below or give us a call.

Send Us A Message:

I agree to receive marketing and customer service calls and text messages from Maxfield Real Estate. To opt out, you can reply 'stop' at any time or click the unsubscribe link in the emails. Consent is not a condition of purchase. Msg/data rates may apply. Msg frequency varies. Privacy Policy.

Do not fill in this field:

This site is protected by reCAPTCHA and the Google Privacy Policy and Terms of Service apply.

Hi there! How can we help you?

Contact us using the form below or give us a call.

Send Us A Message:

Do not fill in this field:

This site is protected by reCAPTCHA and the Google Privacy Policy and Terms of Service apply.

Hi there! How can we help you?

Contact us using the form below or give us a call.

Send Us A Message:

Do not fill in this field:

This site is protected by reCAPTCHA and the Google Privacy Policy and Terms of Service apply.

Do not fill in this field:

This site is protected by reCAPTCHA and the Google Privacy Policy and Terms of Service apply.

Do not fill in this field:

This site is protected by reCAPTCHA and the Google Privacy Policy and Terms of Service apply.

Do not fill in this field:

This site is protected by reCAPTCHA and the Google Privacy Policy and Terms of Service apply.

$

Do not fill in this field:

This site is protected by reCAPTCHA and the Google Privacy Policy and Terms of Service apply.