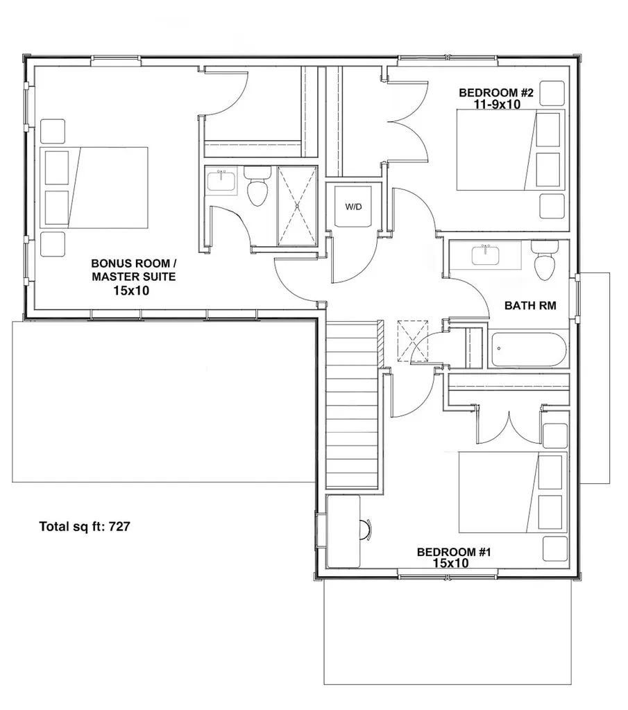
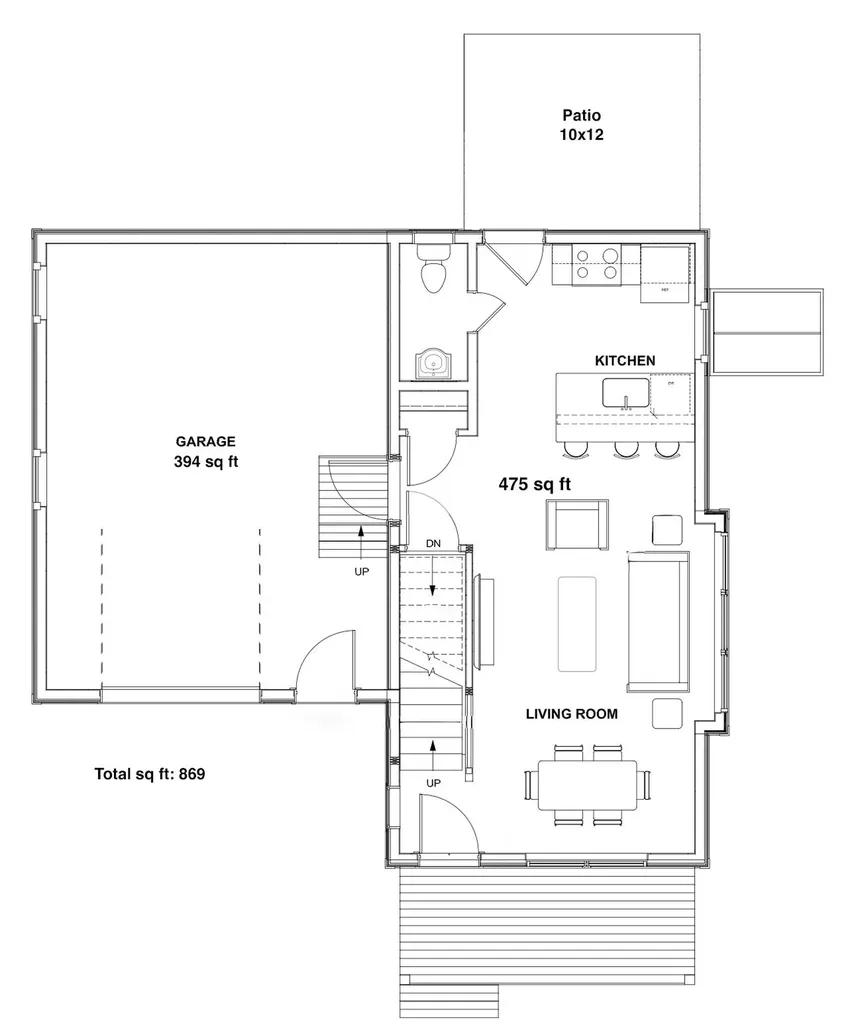
Welcome to the Grove, a thoughtfully planned new construction community of energy-efficient homes set along the Connecticut River in scenic Charlestown. Built on land with a conservation-focused legacy, this neighborhood is designed to preserve a natural beauty while offering modern, comfortable living with a peaceful, rural feel. This brand-new 3-bedroom, 2.5-bath home features a bright, open-concept layout filled with natural light-perfect for everyday living and easy entertaining. The kitchen, dining and living areas flow seamlessly together, creating a warm and inviting main living space. Upstairs, you'll find three comfortable bedrooms, including spacious primary suite with a private bath. The home includes a full concrete basement offering excellent storage and future potential to finish for additional living space, a home gym or media room. A 1-car garage adds everyday conveniece, while the level yard provides space to relax, garden or play. Enjoy the best of NH living with nearby walking trails and paths to the Connecticut River, ideal for peaceful strolls, outdoor recreation and soaking in the natural surroundings. Located in the scenic Sugar River Valley, you'll have easy access to Claremont, Keene and the Upper Valley while still enjoying a quiet country setting. Designed and built by Chinburg Builders, a trusted Energy Star builder for over 20 yers, these homes offer lower energy costs, enhanced comfort and quality construction verified by independent testing. The Grove delivers a rare opportunity to own a brand-new, energy-efficient home in a beautifully planned riverside community.

Listing Tools

Property Details of Lot 5 Blackberry Lane

Property Details

Interior Features

Exterior Features

Utilities and Appliances

Community

Map Location

Driving Directions

Broker Reciprocity 

Copyright 2026 PrimeMLS, Inc. All rights reserved. This information is deemed reliable, but not guaranteed. The data relating to real estate displayed on this display comes in part from the IDX Program of PrimeMLS. The information being provided is for consumers’ personal, non-commercial use and may not be used for any purpose other than to identify prospective properties consumers may be interested in purchasing. Data last updated March 14, 2026 9:22 PM EDT

 

Hi there! How can we help you?

Contact us using the form below or give us a call.

Send Us A Message:

I agree to receive marketing and customer service calls and text messages from Maxfield Real Estate. To opt out, you can reply 'stop' at any time or click the unsubscribe link in the emails. Consent is not a condition of purchase. Msg/data rates may apply. Msg frequency varies. Privacy Policy.

Do not fill in this field:

This site is protected by reCAPTCHA and the Google Privacy Policy and Terms of Service apply.

Hi there! How can we help you?

Contact us using the form below or give us a call.

Send Us A Message:

Do not fill in this field:

This site is protected by reCAPTCHA and the Google Privacy Policy and Terms of Service apply.

Hi there! How can we help you?

Contact us using the form below or give us a call.

Send Us A Message:

Do not fill in this field:

This site is protected by reCAPTCHA and the Google Privacy Policy and Terms of Service apply.

Do not fill in this field:

This site is protected by reCAPTCHA and the Google Privacy Policy and Terms of Service apply.

Do not fill in this field:

This site is protected by reCAPTCHA and the Google Privacy Policy and Terms of Service apply.

Do not fill in this field:

This site is protected by reCAPTCHA and the Google Privacy Policy and Terms of Service apply.

$

Do not fill in this field:

This site is protected by reCAPTCHA and the Google Privacy Policy and Terms of Service apply.